"Лесная Симфония": Двухэтажный Дом из Клееного Бруса 191 м²

"Лесная Симфония": Двухэтажный Дом из Клееного Бруса 191 м²

Мечтаете о жизни в гармонии с природой, не отказываясь от комфорта? "Лесная Симфония" - это уютный и просторный двухэтажный дом из клееного бруса, созданный для счастливой жизни вашей семьи!


Мы ценим каждого клиента и стремимся предложить максимально выгодные условия. Стоимость проекта рассчитывается индивидуально, учитывая все ваши пожелания и особенности задачи.


Мечтаете о жизни в гармонии с природой, не отказываясь от комфорта? "Лесная Симфония" - это уютный и просторный двухэтажный дом из клееного бруса, созданный для счастливой жизни вашей семьи!


Мы ценим каждого клиента и стремимся предложить максимально выгодные условия. Стоимость проекта рассчитывается индивидуально, учитывая все ваши пожелания и особенности задачи.


  • Описание

    "Лесная Симфония": Ваш Уютный Уголок в Окружении Природы


    Представляем Вашему вниманию "Лесную Симфонию" - очаровательный двухэтажный дом из клееного бруса, созданный для тех, кто ценит тепло натурального дерева, комфорт и гармонию загородной жизни.


    Простор для всей семьи:


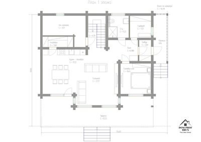
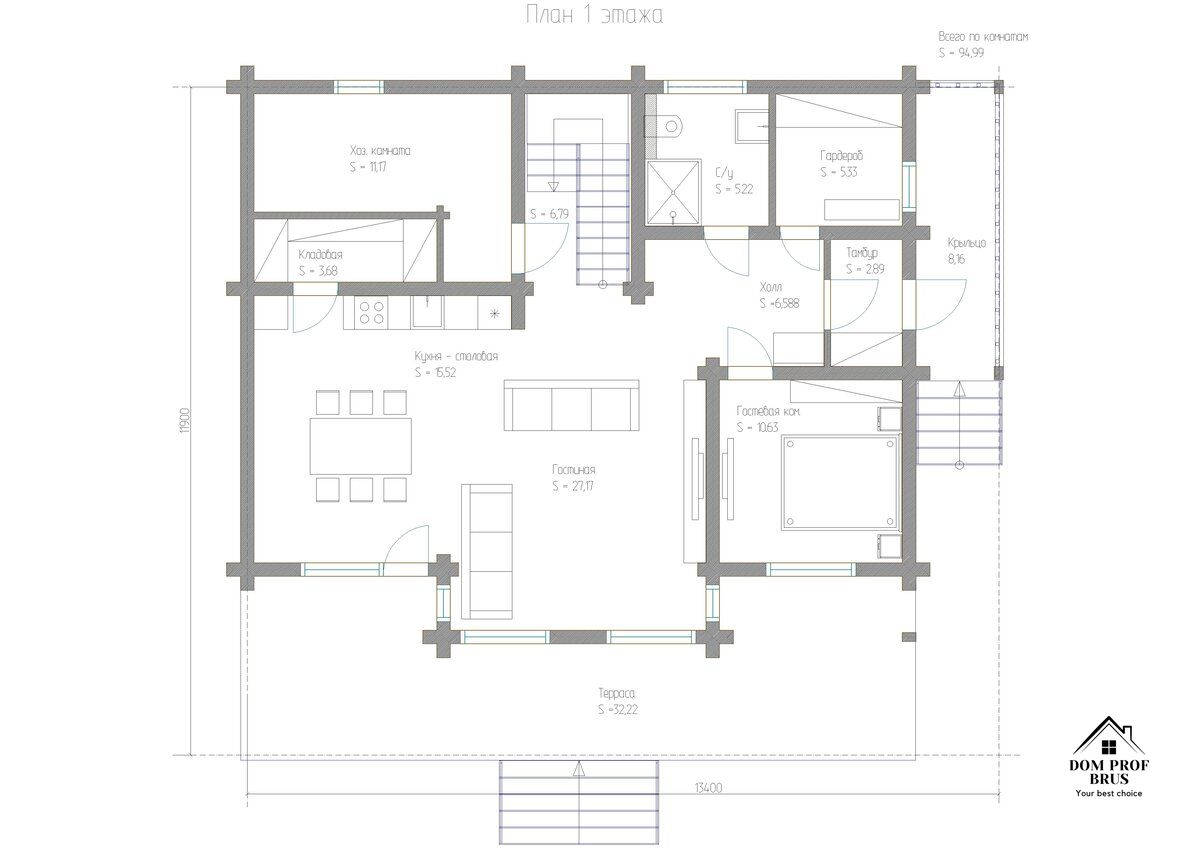
    Дом идеально спроектирован для комфортного проживания семьи из 4-6 человек. Продуманная планировка включает в себя:


    * Просторную гостиную, где так приятно собраться всей семьей у камина.
    * Уютные спальни, наполненные светом и теплом.
    * Функциональную кухню, где с удовольствием будет готовить даже самый взыскательный кулинар.
    * Дополнительные помещения (кабинет, игровую комнату, гостевую спальню) - вы сможете организовать пространство по своему вкусу!


    Эстетика и комфорт в каждой детали:


    * Дом построен из высококачественного клееного бруса - экологичного и долговечного материала, который создает особый микроклимат в доме.
    * Большие окна наполняют пространство естественным светом и открывают живописные виды на окружающую природу.
    * В отделке использованы натуральные материалы, создающие атмосферу тепла и уюта.


    Жизнь в гармонии с природой и собой:


    Представьте, как вы просыпаетесь под пение птиц, завтракаете на террасе, наслаждаясь свежим воздухом, а вечера проводите у камина в кругу семьи. "Лесная Симфония" - это не просто дом, это образ жизни, наполненный спокойствием, радостью и гармонией.


    Позвоните нам сегодня, чтобы договориться о просмотре и лично убедиться в очаровании "Лесной Симфонии"!


    Мы предлагаем вам гибкие решения для строительства вашего идеального дома. Вы можете выбрать:


    * Тип фундамента: Свайно-винтовой, ленточный (ФМЗ), утепленная шведская плита (УШП), утепленный финский фундамент (УФП).
    * Кровельное покрытие: Надежная металлочерепица или мягкая кровля с водосточной системой.


    Дополнительные опции:


    * Установка качественных окон и дверей ПВХ с профилем REHAU и двойным стеклопакетом.
    * Монтаж всех инженерных коммуникаций: водоснабжение, канализация, вентиляция, дымоход.
    * Сборка "в коренной шип" для максимальной теплоизоляции.


    Стоимость строительства:

    Каждый проект рассчитывается индивидуально, учитывая ваши пожелания к комплектации и материалам.